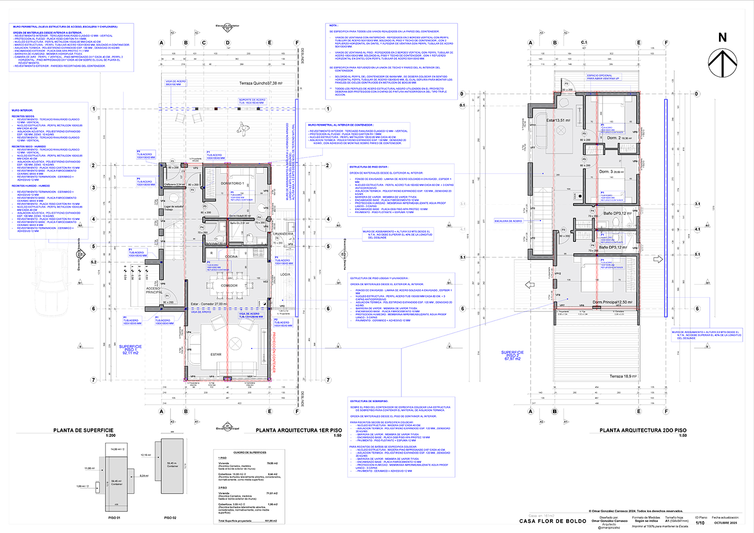
Casa Flor de Boldo

Casa Flor de Boldo

151m2

+ Cobertizos

Espacios:

  • 4 Dormitorios.
  • 4 baños.
  • Cocina / Comedor / Estar, Integrados.
  • Estar en 2° nivel + Terraza.
  • + Terrazas posterior.
  • +Terraza para dormitorio principal.

Estructura:

  • Proyecto desarrollado en base a 4 Contenedores Marítimos de 12m.
  • Estructura de acero complementaria.

 

Próximamente…

Abrir chat
1
Escanea el código
Hola
¿En qué podemos ayudarte?